Slope Transition Details

      Details Download
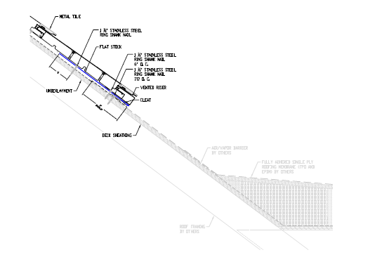
      Low-Slope (Single Ply Membrane) to Steep Slope, Metal Tile DWG PDF
      Steep to Steep Slope, Gambrel, Metal Tile DWG PDF
      Steep to Steep Slope, Bonnet, Metal Tile DWG PDF

      View all Solar Roof detail drawings

      Parent topic: Solar Roof Detail Drawings (View All)
      • Solar Roof Detail Drawings (View All)
        • Perimeter Details
        • Ridge Details
        • Roof Penetration Details
        • Roof to Wall Interaction Details
        • Slope Transition Details
        • Tesla Solar Roof Construction Specification
      • © Tesla 2025