Roof to Wall Interaction Details

      Details Download
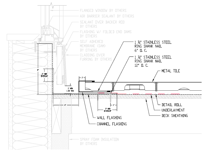
      Roof to Window Sill, Head Wall, Metal Tile, 5:12 DWG PDF
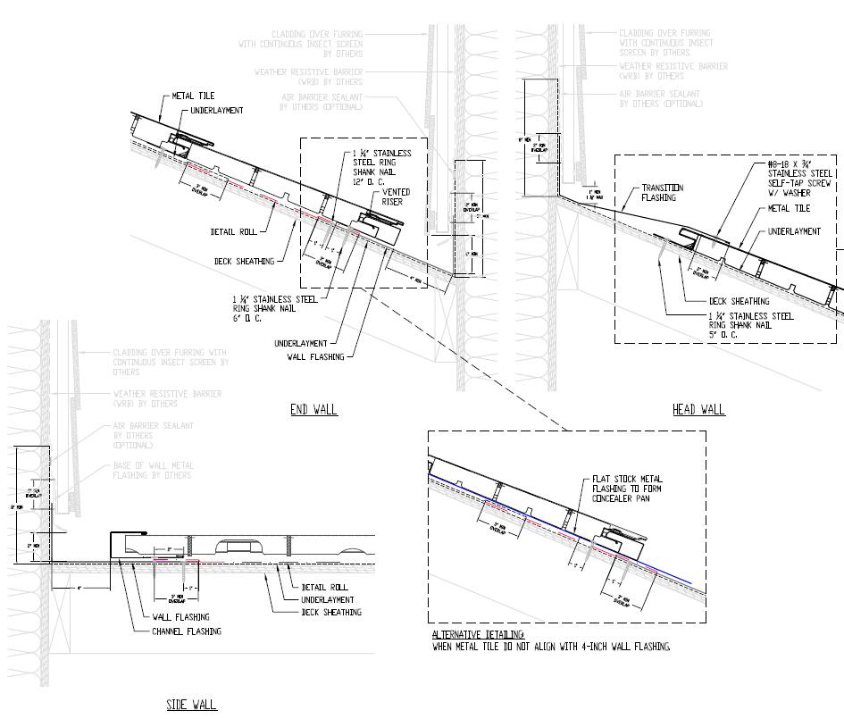
      Roof to Window Sill, Side Wall, Metal Tile, 5:12 DWG PDF
      Roof to Wall, FC Lap, Metal Tile, 5:12 DWG PDF
      Stucco Head, Side and End Walls DWG PDF
      Stucco Cladding (Rainscreen) Head, Side and End Walls DWG PDF
      Surface Mount Flashing, Stucco, Metal Tile, 5:12 DWG PDF

      View all Solar Roof detail drawings

      Parent topic: Solar Roof Detail Drawings (View All)
      • Solar Roof Detail Drawings (View All)
        • Perimeter Details
        • Ridge Details
        • Roof Penetration Details
        • Roof to Wall Interaction Details
        • Slope Transition Details
        • Tesla Solar Roof Construction Specification
      • © Tesla 2025