Solar Roof Detail Drawings (View All)
Perimeter Details
| Details | Download | ||
|---|---|---|---|
|
Eave, Metal Tile, 5:12 | DWG | |
|
Eave with Gutter, Metal Tile, 5:12 | DWG | |
|
Eave, PV Tile, 5:12 | DWG | |
|
Eave with Gutter, PV Tile, 5:12 | DWG | |
|
Eave with AL Fascia, Metal Tile, 5:12 | DWG | |
|
Eave, Top of Wall, Metal Tile, 7:12 | DWG | |
|
Rake, Metal Tile | DWG | |
|
Hip, Metal Tile, 6:12 | DWG | |
|
Valley, Metal Tile, 5:12 | DWG | |
|
Peak Wall, Metal Tile, 7:12 | DWG | |
|
Peak Wall with Overhang, Metal Tile, 7:12 | DWG | |
Ridge Details
Roof Penetration Details
| Details | Download | ||
|---|---|---|---|
|
DWV Pipe Penetration, Metal Tile, 5:12 | DWG | |
|
OSD Pipe Penetration, Metal Tile, 5:12 | DWG | |
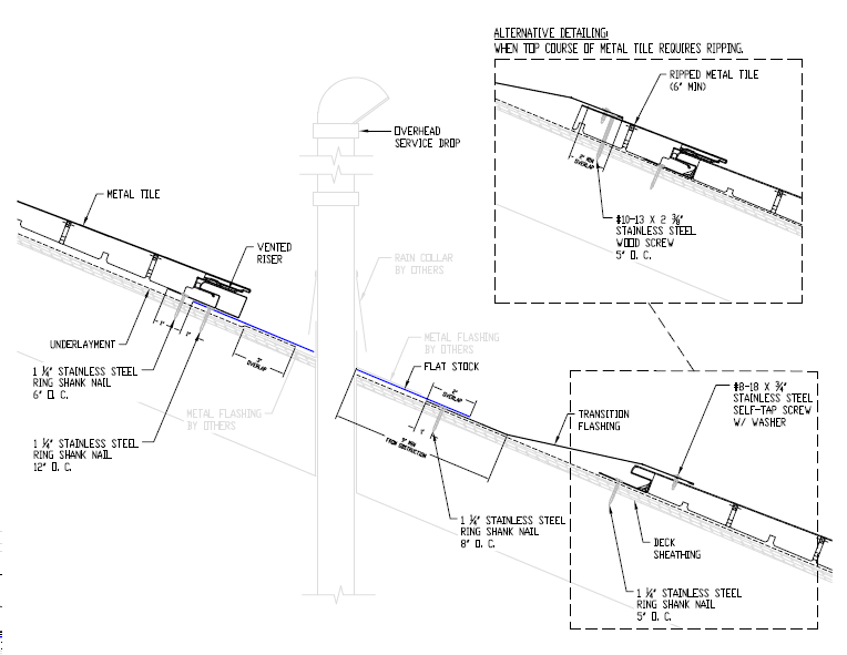
|
Solar Tube, Metal Tile, 5:12 | DWG | |
|
Chimney, Brick,Metal Tile, 5:12 | DWG | |
|
Chimney with Cricket, End Wall, Brick, Metal Tile, 5:12 | DWG | |
|
Skylight, Curb Mount, Metal Tile, 5:12 | DWG | |
|
Skylight, Deck Mount, Metal Tile, 5:12 | DWG | |
|
Tile Vent, Metal Tile, 5:12 | DWG | |
|
Accessory Bracket, Metal Tile, 5:12 | DWG | |
|
Assisted Access Point, Metal Tile, 5:12 | DWG | |
Roof to Wall Interaction Details
| Details | Download | ||
|---|---|---|---|
|
Roof to Window Sill, Head Wall, Metal Tile, 5:12 | DWG | |
|
Roof to Window Sill, Side Wall, Metal Tile, 5:12 | DWG | |
|
Roof to Wall, FC Lap, Metal Tile, 5:12 | DWG | |
|
Stucco Head, Side and End Walls | DWG | |
|
Stucco Cladding (Rainscreen) Head, Side and End Walls | DWG | |
|
Surface Mount Flashing, Stucco, Metal Tile, 5:12 | DWG | |































